Shoreditch Village/
Montacute Yards
Urban Regeneration
Shoreditch
London E1

Clients Phase 1:
Workham, CitizenM, Lirastar

Clients Phase 2:
Brockton Capital

Masterplanner & Lead Architect/Detailed Planning Consent Phases 1 and 2:
Ellis-Miller + Partners

Delivery Architects:
Axis

Citizen M Interiors:
Concerete

Phase 2:
Brockton Capital

Architects Phase 2:
AHMM

RIBA London Award

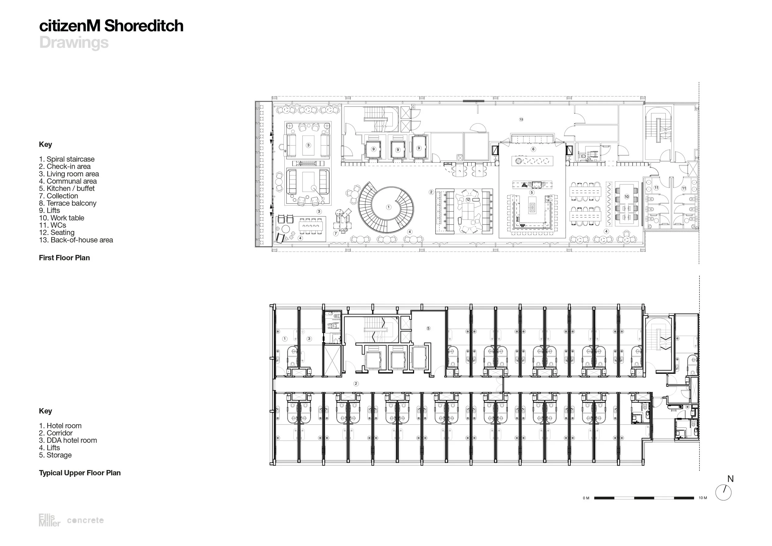
Ellis-Miller + Partners designed the citizenM Hotel Shoreditch, a standout element of Shoreditch Village’s Phase 1. Their masterplan featured in phase 1 a builindg occupying the footprint of the demolished railway viaduct, the masterplan called on the all buildings to have active ground floor frontages. The ground flor of the hotel has a simple lobby with a helical staircase to the main bar and restaurant lounge area. The majority of the ground floor being retail space. The hotel consists of 216 rooms. The design is inspired by the site’s railway heritage. Surmounting intricate planning and construction challenges through astute collaborations, delivering an affordable luxury hotel that enhances London’s East End hospitality landscape.

Ellis-Miller + Partners conceptualising the hotel’s design to evoke the southward extension of the historic railway line, positioning it as a visual continuation of the active viaduct to the north. The elevation’s facade ingeniously reflects brick bond patterns derived from the original viaduct, employing a grid-like motif with picture-frame windows and brick accents to pay homage to Shoreditch’s brick railway past.  Planning intricacies involved securing Hackney permissions amid proximity to the Overground viaduct, addressing noise, vibration, and conservation concerns through detailed impact studies and stakeholder dialogues. Construction difficulties included modular off-site fabrication to expedite assembly (14 weeks preparation, eight for installation), navigating live railway operations, and overcoming 2016 material shortages post-Brexit, all while maintaining site integrity in a bustling conservation area.

Collaborations amplified the project’s ingenuity: Amsterdam’sConcrete, as co-designers, executed the modular stacking above a plinth reminiscent of tube carriages, aligning with Ellis-Miller’s vision for proportions matching the viaduct’s width and repetition. Gustafson, Porter + Bowman integrated landscape ties to surrounding courtyards. Ellis-Miller + Partners and developer Workham coordinated with Transport for London to alllow development near to the rasilway and to re-activate the space under the viaduct for use as a market place allowing for a variety of uses.

The hotel appeals to millennial and business travellers, with 2026 reviews extolling its energetic ‘living room’ lobbies adorned with Vitra furnishings and art by Julian Opie, plus 24/7 canteenM and rooftop bar vistas. Nuances encompass acoustic engineering for train mitigation. Implications: Bolsters Shoreditch’s tourism, synergising with 2026 area developments like expanded Elizabeth Line access. There were significant technical and planning, such as modular fire compliance adaptations, were resolved through specialist engineering. Ellis-Miller + Partners orchestration of these creative partnerships exemplifies resilient design in urban regeneration, rendering citizenM Shoreditch a benchmark for heritage-infused hospitality in one of London’s most vibrant quarters.



Previous
Previous

Mansell Street

Next
Next

Shoreditch Village