The Hoover Building Residential Conversion Western Avenue
Perivale
West London


RIBA London Award

Endures as one of Britain’s premier Art Deco landmarks. Conceived by Wallis, Gilbert and Partners and realised between 1931 and 1938 for the Hoover Company, its resplendent white terracotta façade, assertive geometric volumes and Egyptian Revival motifs secured Grade II* status. Post-1980s industrial decline and a maladroit Tesco superstore tenure, IDM Properties acquired the site in 2015, commissioning Ellis-Miller Architects—to repurpose the core 1930s edifice (Building No. 1) and, subsequently, the plainer Building 7 into 66 luxury residences: 18 studios, 23 one-bedroom units, 24 two-bedroom flats and one three-bedroom penthouse.

Ellis-Miller’s intervention was avowedly conservationist, excising post-war accretions to unveil the innate steel skeleton and reinstating era-defining elements. Crittall windows underwent refurbishment or precise replication, the stuccoed exterior reclaimed its immaculate ivory hue with tonal accents, and the emblematic cantilevered porte-cochère was repainted in turquoise and gilt. The nocturnal “HOOVER” neon script was revived, preserving the edifice’s commanding roadside vista.

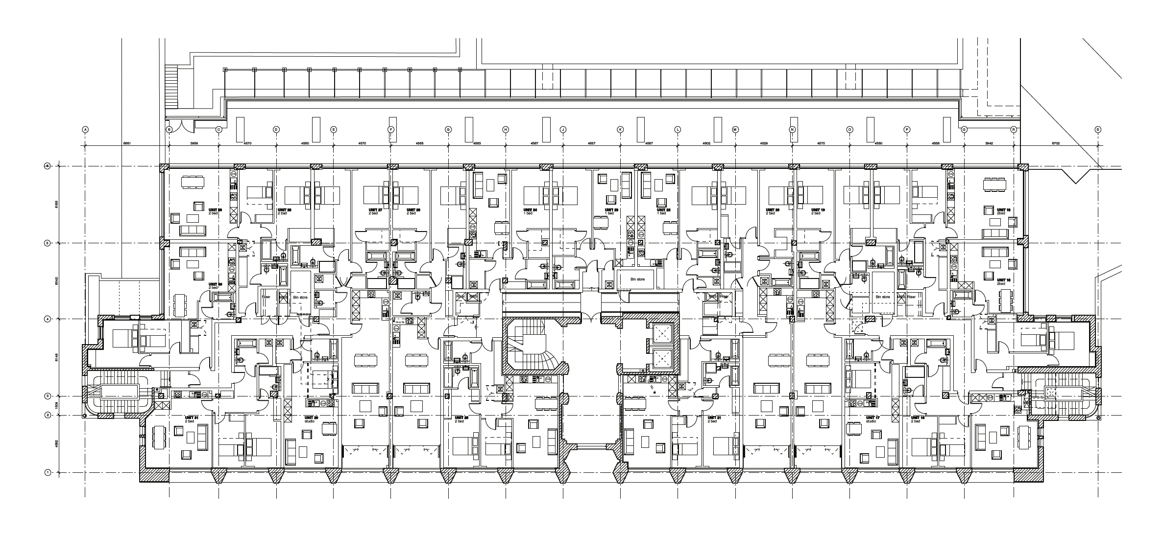
A standout feat was the inception of a novel attic tier for 12 loft apartments, absent from the 1930s blueprint. In tandem with structural engineers Webb Yates, Ellis-Miller engineered a featherweight scheme: timber-frame cassettes and cross-laminated timber (CLT) panels, slashing superimposed loads on the extant steel framework and meagre footings. This obviated exorbitant foundation reinforcement, enabling the adjunct without silhouette disruption—the fresh storey recedes behind an augmented parapet. Zinc seam roofing supplants the erstwhile cement-fibre assembly, incorporating lanterns for daylight penetration and arboreal vistas towards adjacent fairways. These penthouses, averaging 80 sq m apiece with private roof terraces, elevate the scheme’s viability, contributing roughly 960 sq m of novel floorspace to the aggregate 10,000 sq m residential footprint.

Within, erstwhile factory halls were partitioned into lofty dwellings upholding 4.2 m ceilings, baring concrete piers and girders. The bisected ex-canteen metamorphosed into a luminous vestibule with restored glazed lantern, concierge and encircling mezzanine. Amenities encompass a gymnasium, screening room and verdant courtyard in the inter-wing well.

This alchemy of heritage fidelity and structural ingenuity revitalised the icon. Construction commenced in 2017 and reached completion in March 2018, with residents moving in shortly thereafter. Accolades include the 2019 RIBA London Award, Georgian Group Restoration Prize and Civic Trust commendation. The Hoover Building exemplifies adaptive reuse, melding 1930s élan with contemporary opulence in 66 homes that honour its lineage while yielding premium yields.

Client: IDM Properties



Previous
Previous

King John Court

Next
Next

Channelsea House