Channelsea House
Residential Conversion Stratford
London E15

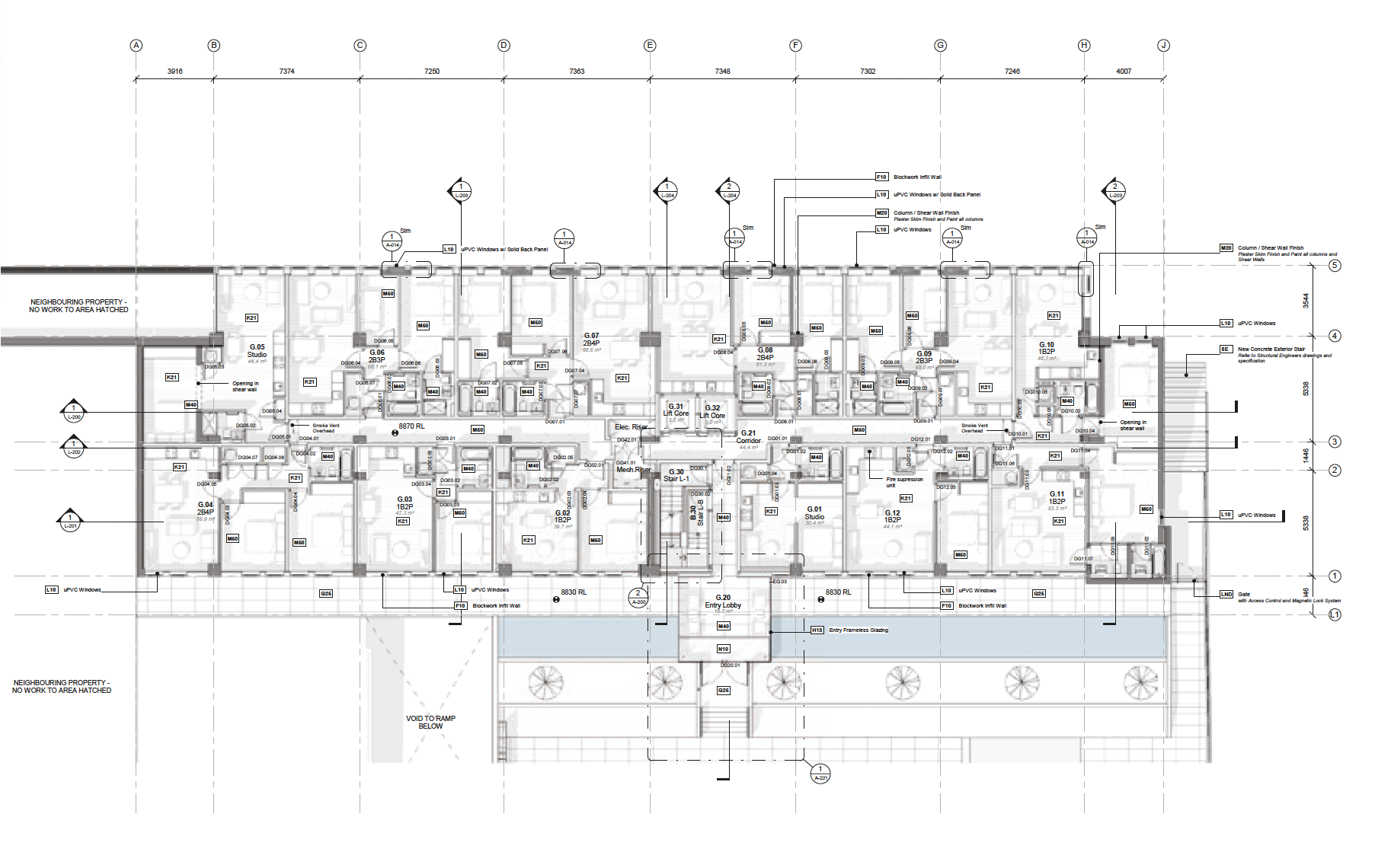
Some projects by Ellis-Miller + Partners are unashamedly commercial, this project was  sustainability-led transformation of a 1960s six-storey concrete frame building into 72 contemporary apartments, delivered by IDM Properties.

By retaining and upgrading the entire existing structure, the project dramatically reduces embodied carbon compared to demolition and new-build – a responsible, low-carbon approach that preserves resources while delivering exceptional commercial returns.

The robust concrete frame has been thermally upgraded to exceed current Building Regulations, with a high-performance insulated render system, new double-glazed aluminium windows and enhanced airtightness delivering EPC A ratings across the scheme. Mechanical ventilation with heat recovery (MVHR) ensures outstanding indoor air quality and minimised heat loss.

Roof-mounted photovoltaics supply renewable electricity to communal areas and feed surplus back to the grid, while a fabric-first strategy, high-efficiency boilers and low-energy LED lighting throughout further reduce operational carbon and running costs for residents.

Extensive cycle storage, electric vehicle charging points and a location just 400m from West Ham station (Jubilee, District, DLR, Elizabeth line and National Rail) promote low-carbon travel. The building sits beside the tranquil Channelsea River and Three Mills Green, integrating sensitively with its waterside setting.

Completed using full Revit BIM workflows for precision and waste elimination, Channelsea House proves that retrofitting existing 1960s stock can achieve net-zero-ready performance, exceptional resident comfort and strong investor yields.

Client: IDM Properties



Previous
Previous

The Hoover Building

Next
Next

St George’s Church