Palladio House
Medmenham Court
Buckinghamshire
2500sqm

A private 43-acre Thames-side estate. For those who truly understand luxury, a house is never just a building. It is a private universe that must function with absolute precision while remaining effortlessly beautiful and deeply personal. The house and the landscape must be as one.

Ellis-Miller + Partners have spent three decades designing precisely that for a handful of Britain’s most discerning owners. Palladio House is the most complete expression of that understanding ever realised.

Hidden at the end of a mile-long private drive between Marlow and Henley-on-Thames, the estate is invisible from the outside world. The main house is a when it reveals itself presents a grand façade, elegantly proportioned and richly detailed. With a discreet staff pavilion and parking for estate vehicles and equipment constructed from hand-made Danish-brick quietly shields the championship tennis court and the main house from any public view.

Enter through the circular hall and the first sight is the breathtaking pre-stressed limestone helical staircase: a single, self-supporting ribbon of stone that rises three full storeys through space, lit from a 15-metre oculus above. No column, no stringer – just pure, weightless elegance.

Four classical limestone elevations rise to a brick clad rotunda, that contains the master penthouse: a perfect 10-metre diameter room, with a series of vertical window slots framing significant long-distance views to the Chilterns in the distance. Here’s a huge sliding door to the east that frames views of the Thames and opens out on to a spectacular terrace–the roof has an openable oculus rooflight, sunrise, and starlight at the touch of a button, complete silence and perfect temperature year-round.

•  4.5-metre ceilings and perfectly proportioned reception rooms

•  a 120 m² kitchen/family room opening directly to the river

•  four private guest suites on their own floor

• home cinema and media room

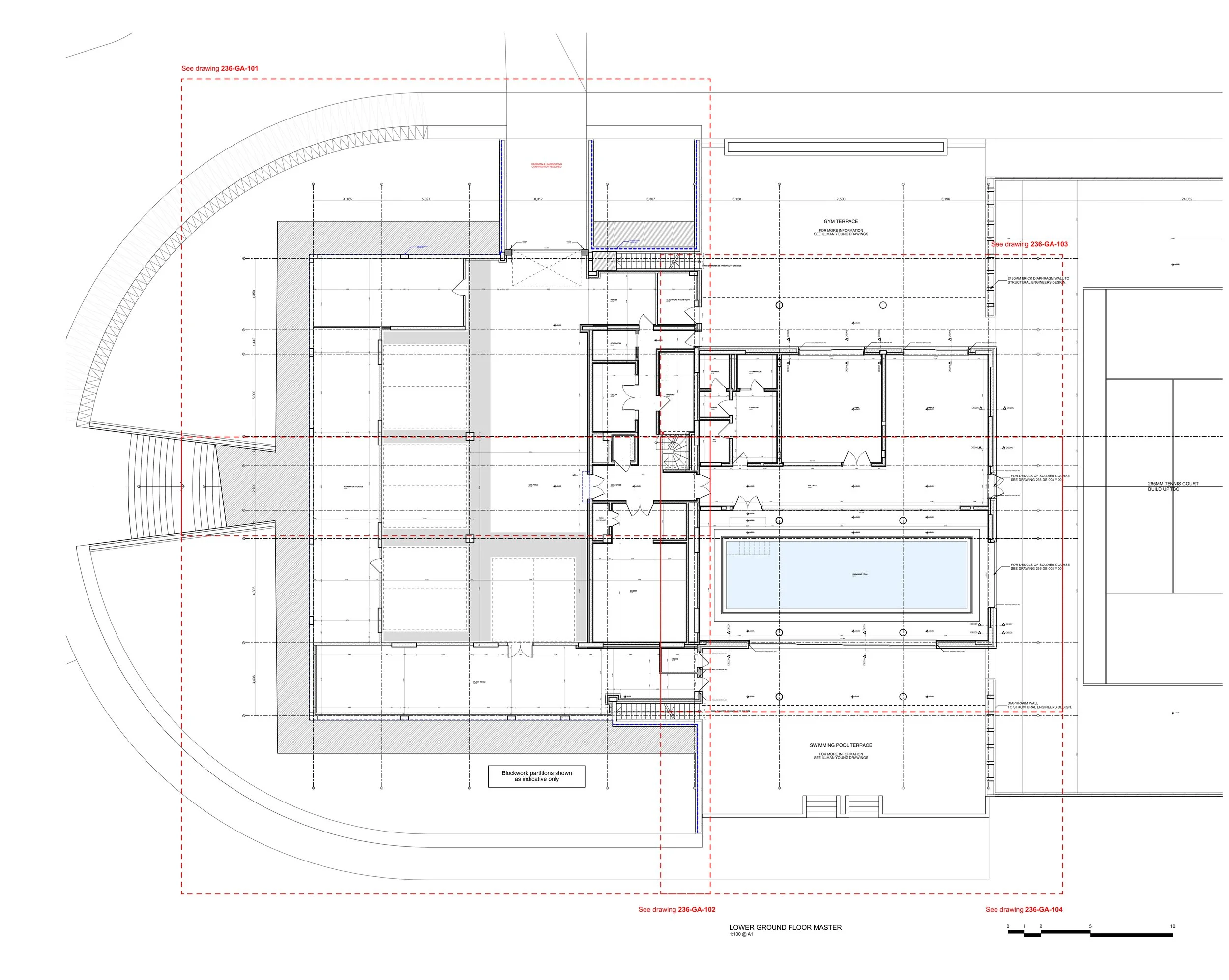
•  lower-ground leisure wing with 14 m pool, spa, gym, full-size snooker room and extensive cellars

• secure parking for nine cars

• Staff life is woven in with equal finesse. Four generous self-contained suites, their own kitchen, living room and garden, yet connected to every floor by hidden corridors and a dedicated service lift. The house runs like the finest private estate while feeling intimately like home. Sustainability is total but invisible: ground-source heat pumps, private borehole, 120 kWp solar array and MVHR deliver near-Passivhaus performance with running costs comparable to a modest London townhouse.

• Every detail has been anticipated right down to the vintage Wurlitzer niche in the family room. It is the new benchmark for how the most discerning families wish to live today.

Previous
Previous

Vermuyden House

Next
Next

Bagatelle