Prospect House
West Wratting
Cambridgeshire

Client:
Jonathan Ellis-Miller & Marie-Gabrielle Rotie

Prospect House is a pure Miesian glass box that runs on almost no energy — a reconciliation many architects have chased for decades and few have achieved with such quiet conviction.

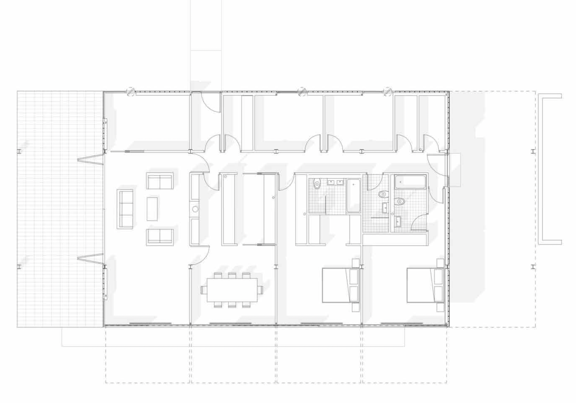
At first glance it is textbook late-Mies: a single-storey steel-framed pavilion, 36 m long × 6 m deep, floating on a plateau above the Cambridgeshire chalk downs. The south façade is an uninterrupted 30-metre run of floor-to-ceiling sliding glass; the roof is flat, the structure exposed, the plan free. Yet this apparently fragile, transparent box was designed to operate at near-Passivhaus levels using only modest, replicable technologies — and it does so without a single visible concession to “green” aesthetics.

Sustainability is achieved through five interlocking strategies that preserve the Miesian ideal of universal space and visual lightness:

Extreme envelope performance disguised as minimalism
The steel frame is thermally broken and wrapped in 300 mm of high-performance insulation behind the white rendered rain-screen (U-value 0.11 W/m²K). The “glass wall” is in fact high-performance double glazing (Uw 0.8 W/m²K, g-value 0.5) set in slim anodised-aluminium frames no thicker than Mies himself might have accepted. The flat roof carries 400 mm of insulation above a vapour-permeable membrane (U 0.09 W/m²K). The concrete floor slab is insulated underneath and around the perimeter. Result: whole-house heat loss coefficient <0.34 ach @ 50 Pa — Passivhaus territory — while the building still reads as a delicate pavilion.

Passive solar tempering without bulk

A 4-metre roof retractable roof on the south, combined with motorised external Venetian blinds, delivers precise solar control: full winter gain, near-total summer rejection. The blinds disappear into a hidden slot when not in use, preserving the pristine elevation.

Water and material economy
10,000 litres of rainwater storage, full greywater recycling to landscape, and a palette restricted to steel, glass, concrete, oak and rendered blockwork — all chosen for longevity, low embodied carbon and zero maintenance.

Off-site fabrication and self-build discipline

The entire steel frame was fabricated in a South Wales factory, delivered in one week and erected in five days. The family acted as main contractor, repeating the disciplined low-budget approach pioneered at Prickwillow twenty-five years earlier.

The result is a house that consumes less than 20 kWh/m²/yr for heating and achieves net-zero operational carbon in most years through 15Kw rooftop PV array. Yet nothing about its appearance betrays the effort: no thick walls, no protruding vents, no applied “eco-bling”. It remains a pure glass box — only now it is one that works with the climate rather than against it.

Prospect House is therefore not merely the logical endpoint of the modernist project: a universal space that is universally efficient. In reconciling Miesian transparency with 21st-century performance, it quietly closes the circle begun in the Fens in 1993.



Previous
Previous

Reyner Banham House

Next
Next

Future World House